Hand Drafting

H u n t e r   R e s i d e n c e

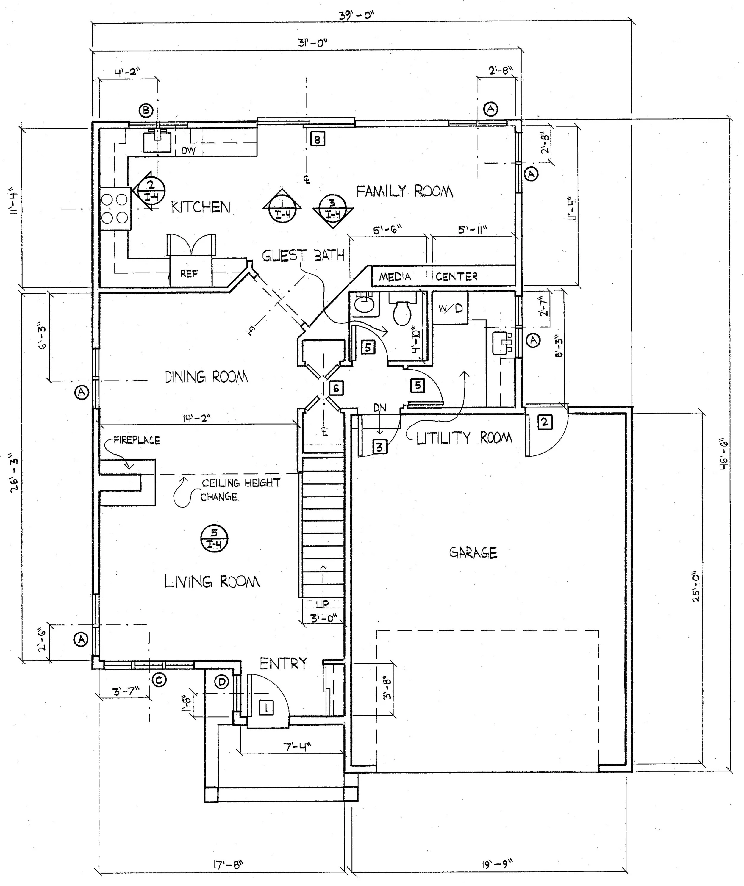
The instructor provided students with base plans of a two-story residence at a 1/8" scale with no dimensions. Students were responsible for completing a drawing set at a 1/4" scale, which included a title page, floorplans, reflected ceiling plans, elevations, legends, schedules, and general notes.

First Floor Floorplan

Second Floor Floorplan

Goal: This project aims to demonstrate the correct usage of hand-drafting techniques and standards, creating a hand-drafted drawing set.

Skills: Hand drafting techniques and standards, line weights, symbols, hand lettering, and drawing scales

First Floor Lighting Plan

First Floor Kitchen Elevation

First Floor Kitchen & Family Elevation

First Floor Kitchen & Family Elevation

First Floor Living & Dining Elevation

Second Floor Master Bath Elevation

Previous
Previous

Historic Interior Design

Next
Next

Revit