Bath Design

P a r a d i s e   C o v e

The beautiful natural oasis of Paradise Cove in the Rocky Mountains inspired this design, creating a relaxing space where you can unwind.

This space abstracts and mimics the cove's beauty, colors, and materials. The gold fixtures mimic the yellow undertones of wood and rock, the blue hues reflect soothing, relaxing water, and the pebble and stacked rock tile bring in natural elements. The simple lines of the fixtures and fittings and muted color palette allow the room and large window to showcase the client's incredible view outside rather than distract from it.

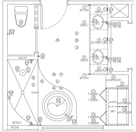
Goal: This project aims to create a bathroom that adheres to NKBA standards and addresses client concerns, desires, and aesthetic preferences.

Skills: AutoCAD, NKBA standards, programming, concept development, schematic design, space planning, design development, construction documents, specification sheets, and material estimating and costing

Previous
Previous

Kitchen Design

Next
Next

Residential Design